您當前所在位置:首頁 > LS螺旋輸送機
LS型螺旋輸送機概述:
LS螺旋輸送機一直被廣泛用于國民經濟各部門,如建材、冶金、化工、電力、煤炭、機械、輕工、糧食及食品行業,適宜輸送粉狀、顆粒狀、小塊狀物料,如水泥、煤粉、糧食、化肥、灰渣、沙子、焦炭等。不宜輸送易變質、粘性大、易結塊的物料,LS螺旋輸送機工作環境溫度通常為-20~40℃,輸送物料的溫度一般為-20~80℃,LS螺旋輸送機適宜水平和小傾角布置,傾角以不超過15°為宜,如傾斜角度過大請選用GX系列螺旋輸送機,或與我公司技術部門聯系進行單獨設計。

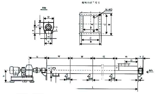
LS螺旋輸送機安裝示意圖:

LS螺旋輸送機外形尺寸及技術參數:


LS型螺旋輸送機的工作原理:
LS型螺旋輸送機是利用旋轉的螺旋將被輸送的物料沿固定的機殼內推移而進行輸送工作,頭部及尾部軸承移至殼體外,吊軸承采用滑動軸承設有防塵密封裝置,軸瓦一般采用粉末冶金,輸送水泥采用毛氈軸瓦,吊軸和螺旋軸采用滑塊連接。

LS系列螺旋輸送機的特點:
1.承載能力大、安全可靠。
2.適應性強、安裝維修方便、壽命長。
3.整機體積小、轉速高、確??焖倬鶆蜉斔?。
4.密封性好、外殼采用無縫鋼管制作,端部采用法蘭互相連接成一體,剛性好。

LS型螺旋輸送機整機布置形式:
一臺螺旋輸送機通常由螺旋機本體、進出裝置、驅動裝置三大部分組成。
螺旋機本體由頭節、中間節、尾節三種組成。一般情況下,出廠總裝時將中間節按長度長短依次排列,長的中間節靠近頭節,相同長度的中間節則挨在一起,如果有特殊要求,則在訂貨時給出排列順序。
在頭節內裝有支推軸承承受軸向力,在中間節和尾節內裝有用軸承支承螺旋軸,此外,在尾節內還裝有可軸向移動的徑向軸承以補償螺旋軸長度的誤差和適應溫度的變化。螺旋面的形式有實體螺旋(S制法)和帶式螺旋(D制法)兩種。各螺旋軸之間采用法蘭式聯接,保證了聯接軸的互換性,便于維修。
機蓋為瓦片式并用蓋扣夾緊在機殼上,若需改進密封性能,用戶可自行在機蓋與機殼間加防水粗帆布。
進、出料裝置有進料口,方型出料口,手推式出料口,齒條式出料口四種。由用戶在使用現場在機體上開口焊接。布置進出料口位置時應注意保證料口至端部的距離,同時避免料口與吊軸承加油杯、機殼聯接法蘭、底座等相碰。
驅動裝置有ZQ系列減速器+Y系列電動機,YTC齒輪減速電機兩種。

LS螺旋輸送機的特點和應用范圍:
LS型螺旋輸送機結構新穎,技術指標先進,頭部、尾部軸承移至殼外,中間吊軸承采用滾動,滑動可以互換的兩種結構,均設防塵密封裝置,出料端設有清掃裝置,整機噪聲低、適應性強,操作維修方便,進出料口位置布置靈活。
新鄉大漢生產的螺旋輸送機,廣泛應用于化工、建材、糧油、飼料、食品、冶金、礦山、塑料、醫藥等行業;適用于水平或小于20度傾角,輸送粉狀、粒狀和小塊狀物料,如水泥、煤粉、糧食、化肥、灰渣、砂子等,物料溫度200度以下。